Парцел / Терен, град Кърджали
подаването на предложения изтича след 35 дни
Парцел / Терен
Парцел / Терен
1 268,00 кв.м
1 886.67 EUR
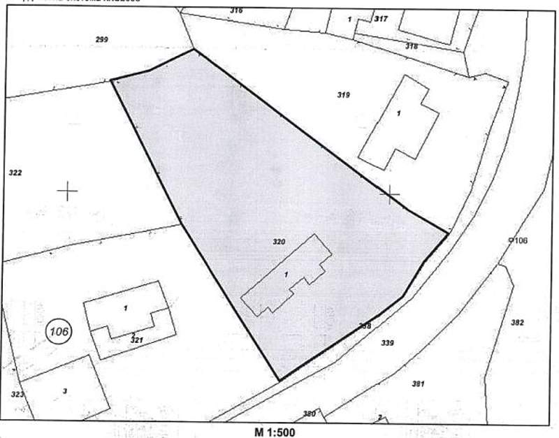
1/2 (една втора)идеална част от:ПОЗЕМЛЕН ИМОТ с идентификатор № 40909.106.320 /четиридесет хиляди деветстотин и девет точка сто и шест точка триста и двадесет/, по кадастралната карта и кадастралните регистри на гр.Кърджали, общ.Кърджали, обл.Кърджали, одобрени със Заповед РД-18-66/18.10.2006г. на Изпълнителния директор на АК, последно изменение на КККР, засягащо поземления имот е от 19.08.2013г., адрес на поземления имот: гр.Кърджали, п.к.6600 /шест хиляди и шестстотин/, ул."Юмер Лютви", площ 1268 кв.м. /хиляда и двеста шестдесет и осем кв.м./, трайно предназначение на територията: Урбанизирана, начин на трайно ползване: Ниско застрояване /до 10м/, предишен идентификатор: няма, номер по предходен план:5356 /пет хиляди триста петдесет и шест/, съседи: 40909.106.338, 40909.106.321, 40909.106.319, 40909.106.299, 40909.106.322.Забележка: в ПИ има построена СГРАДА, която не се продава. НАЧАЛНАТА ЦЕНА, ОТ КОЯТО ЩЕ ЗАПОЧНЕ НАДДАВАНЕТО, Е В РАЗМЕР НА:1 886,67 /ХИЛЯДА ОСЕМСТОТИН ОСЕМДЕСЕТ И ШЕСТ ЕВРО И ШЕСТДЕСЕТ И СЕДЕМ ЦЕНТА/ ЕВРО/90 % ОТ НАЧАЛНАТА ЦЕНА ПО ПЪРВАТА ПУБЛИЧНА ПРОДАН, КОЯТО Е 80 % ОТ ПАЗАРНАТА СТОЙНОСТ НА ½ ОТ ИМОТА, ОПРЕДЕЛЕНА ОТ ВЕЩО ЛИЦЕ СЛЕД РАЗПОРЕЖДАНЕ НА ЧСИ И ОТРАЗЕНА В ЗАКЛЮЧЕНИЕТО НА ЕКСПЕРТИЗАТА ЗА СТОЙНОСТТА НА НЕДВИЖИМИЯ ИМОТ/.
...пълно описание в документите по-горе

